Главная особенность этого мобильного мини-дома — надувной второй этаж-купол, который превращает минималистичный снаружи фургон в двухуровневые апартаменты на колесах.
В 2001 году в Люксембурге был представлен один из самых необычных домов на колёсах. Разработка получила название Esch 22 Space Station или E22SS PIU! — где PIU означает Pump It Up («накачай»).
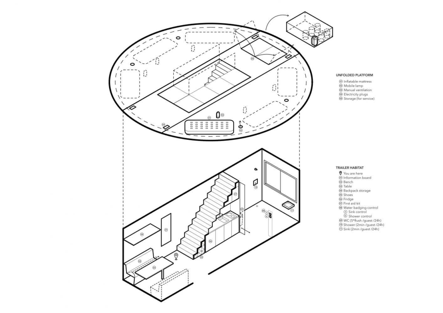
Дом состоит из двухосного прицепа со стенками из нержавеющей стали и одним окном в задней части. В собранном состоянии пространство ограничено только нижним этажом, где находится компактная, но полнофункциональная кухня с плитой, раковиной и холодильником; обеденная зона, которая при необходимости трансформируется в дополнительное спальное место; и, что самое важное, санузел с душем, раковиной и туалетом. Здесь все продумано до мелочей и выполнено в современном стиле.
Но стоит вам остановиться на ночлег или долгий привал, происходит магия. Крыша дома поднимается с помощью пневматических стоек и образуется основание пола из пробкового покрытия. Затем с помощью компрессора за считанные минуты (производитель заявляет о 3-5 минутах) надувается большой двухслойный купол, формируя спальню, где с комфортом могут разместиться до шести человек. Высота потолков на втором этаже позволяет взрослому человеку свободно передвигаться в полный рост.
E22SS PIU! — пример того, как современные технологии и дизайн объединяются, чтобы переосмыслить само понятие дома — не как статичного сооружения, а как живого, гибкого объекта, который путешествует вместе с хозяином. Идея надувного второго уровня может вдохновить не только разработчиков домов на колесах, но и архитекторов, создающих временные павильоны, дачные дома и другие компактные постройки. В этом есть дух будущего: мобильность, экологичность и архитектура, которая развивается вместе с человеком.















